Изложени систем зида од алуминијумске завесе
Opis
Tehničke karakteristike
Изложени систем зида од алуминијумске завесе
О изложеном систему зида од алуминијумске завесе
АнИзложени систем зида од алуминијумске завесеје модерно, лагано раствор фасаде који се обично користи у комерцијалним и високим зградама . састоји се од алуминијумских оквира и панела који су видљиво истакнути, стварајући елегантни, структурални естетски . Ево квара његових кључних карактеристика, предности и апликација:
Кључне карактеристике:
Видљиве промашеве и преносе
Чланови алуминијума (луллови и трансакције) су изложени на спољашњости, дајући изглед попут мреже .
Доступно у различитим фиништима (анодизирани, пресвучени у прах, дрговина итд. .) .
Структурно застакљивање
Стаклене или непрозирне плоче осигуране су помоћу тањира под притиском и капицама, пружајући чистим, али индустријски изглед .
Може да садржи двостране или ламинирано стакло за термичке и акустичне перформансе .
Модуларни дизајн
Пре-измишљене јединице омогућавају бржу инсталацију .
Могу се прилагодити различитим облицима (закривљеним, угрушеним или равним) .
Отпорност на временске прилике
Заптивке и заптивни материјали високих перформанси спречавају инфилтрацију воде и ваздуха .
Издржљив према УВ зрацима, корозији и екстремним временом .
Предности:
✔ Естетска жалба- пружа модерну, архитектонску изјаву видљивим металним уоквиривањем .
✔ Издржљивост- Алуминијум је лаган, али јак, отпоран на рђу и деформацију .
✔ Флексибилност- прилагодљив сложеним дизајну, укључујући нагнуте или закривљене фасаде .
✔ Енергетска ефикасност- Може да интегрише термичке паузе и изоловане стакло за боље перформансе .
✔ Ниско одржавање- захтева минималан ормаран у поређењу са другим материјалима облога .
Апликације:
Канцеларијске торњеве и корпоративне зграде
Тржни центри и аеродроми
Хотели и стамбени хигх-дисови
Институционалне зграде (универзитети, болнице)
Поређење са другим системима:
| Значајка | Изложени систем | Скривени оквир (ССГ / Структурно застакљивање) |
|---|---|---|
| Видљивост | Размазине видљиве | Беспрекорно, без фрамлег изгледа |
| Трошак | Умерен | Виши (због силиконског лепљења) |
| Уградња | Лакши приступ поправки | Сложенији |
| Естетски | Индустријски / модеран | Ултра елегантни, минималистички |
Разматрање уградње:
Захтева прецизно поравнање за водонепропусно перформансе .
Термички експанзија алуминијума мора се рачунати .
Потребне су мере од ватроотпорисања у високим апликацијама .
Случај ГУАНГИА ПРОЈЕЦТИОН: Заједничка изградњу за Хонгконг-Зхухаи-Мацао Бридге
Производ: Зид кровног и завеса
Површина: 10000м²

Спецификација производа
| Робна марка | Гуангиа | Површински третман | Анодизирани, прашкасти флуорокарбонски премаз, електрофореза итд. ... |
| Уписати | Систем зида за завесе | Боја | Прилагођен |
| Број модела | Систем зида изложених серија | Дужина | Прилагођен |
| Место порекла | Направљено у Кини | Дебљина алуминијума | Главна профилна дебљина зида 3,0 мм |
| Материјал | Алуминијумска легура и стакло | Стакло | 6/8 / 10/12 мм, једнокрилно стакло / ламинирано стакло / двоструко стакло Каљено стакло / ниско - Е стакло |
| Нарав | T3 - T8 | Сертификат | ИСО9001 ЦКЦ Саиглобал АС2047 |
| Примена | Погодно за различите врсте грађевина | Прилагођавање | Лого / Паковање / Графикон |
| Облик | Прилагођен | Детаљи паковања | ЕПЕ филм / топлота уговорена пластична филм / дрвена паковање / метална палета или зависе од клијената који су оптерећења . |
| Легура или не | Да | Време испоруке | 20 - 30 Дани |
| Услуга обраде | Пробијање, сечење, савијање, украшавање, заваривање | Способност снабдевања |
200000㎡ / год |
Функција и апликација
Гуангиа серијски изложени зидни систем за завјетни зид од 6 мм +12 а +6 мм изолационо стакло, главна дебљина зида је 3 . 0 мм . Систем стаклене завесе састоји се од металних компонената и стаклених плоча, причвршћивање на главну структуру, али не подстиче главну структуру.
Поред функције украса, он такође делује различите функције попут ветра против, трепери, топлотни претрес, топлотну изолацију, акустичку изолацију, пропустљивост ваздуха .
Све у свему, зид од алуминијума изложених оквира комбинује функционалност, естетику и перформансе за стварање визуелно привлачне и структурно звучне зграде .

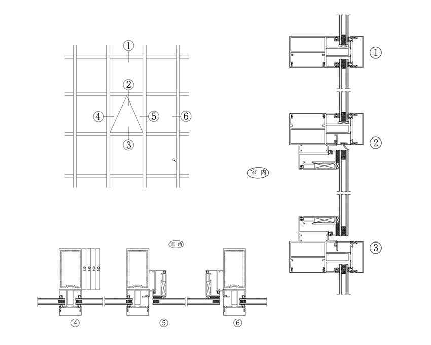
Цртеж структуре
Систем зида изложених серија

Производња прераде

Паковање и отпрема

Постављана питања
П: Које је ваше главно тржиште?
О: Наша главна тржишта су Аустралија, Блиски Исток, Јужна Азија и Јужна Америка .
П: Колико квадратних метара ваше фабрике?
О: Више од 40, 000 ㎡ .
П: Колико радника у вашој фабрици?
О: 400+ Техничари и радници .
П: Да ли тргујете компанијом или произвођач?
О: Ми смо професионални произвођач специјализован за зид од алуминијумске завесе, прозор и зид . и директно тргујемо са нашим клијентима .
П: Имате ли КЦ одељење?
О: Да .
П: Можете ли да урадите сопствено паковање?
О: Да, само дајете дизајн пакета и ми ћемо произвести оно што желите . имамо и професионални дизајнер, може вам помоћи да урадите дизајн паковања .
П: Колико је твоја фабрика са аеродрома и железничке станице?
О: Са аеродрома око 50 минута колима, и од железничке станице око 30 минута .
П: Имате ли дозволу за извоз?
О: Да .
П: Да ли дате узорак? Да ли је бесплатно?
О: Обезбедићемо узорак са теретним сакупљањем, а узорак није бесплатан .
П: Можете ли организовати пошиљку за купца?
О: Да, радимо са најпоузданим бродским компанијама на свету, као што су ООЦЛ, МЕСК, МСЦ итд. .
Popularne oznake: Изложени систем зида за завесе од алуминијума, Кина изложена произвођачима зида лика, фабрика
Par
neSledeći
Велики зид завесеPošalji upit








